Sauna da esterno Round Cube Lifeclass® by Leil®
Design architettonico, comfort nordico e benessere autentico
Sauna da esterno premium con struttura curva iconica, materiali naturali e soluzioni tecniche evolute per un’esperienza di vero benessere outdoor.
La sauna da esterno Round Cube rappresenta una nuova interpretazione della sauna outdoor di design: una struttura scultorea, elegante e funzionale, pensata per giardini privati, terrazze, spa, hotel e strutture ricettive di alto livello.
Realizzata in ThermoWood® (legno termotrattato ad alta resistenza per esterni), con vetrate temperate e archi strutturali curvi, Round Cube garantisce isolamento, durata nel tempo e massima resa termica in ogni stagione.
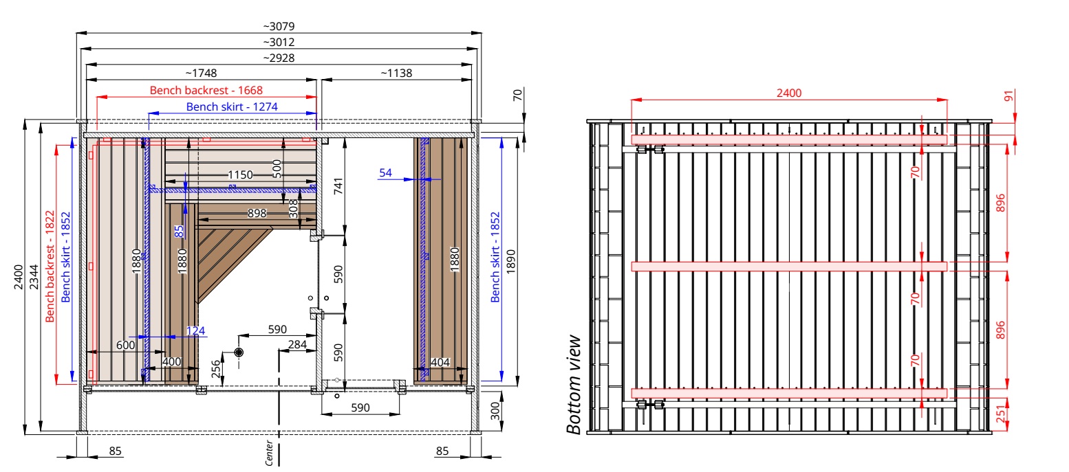
Gli interni sono progettati per il comfort: panche ergonomiche su più livelli, schienali anatomici, ventilazione naturale e illuminazione LED integrata, per creare un ambiente caldo, rilassante e armonico.
Ogni sauna viene fornita con stufa di marchio Tylo o Helo, sinonimo di affidabilità, prestazioni elevate e sicurezza, leader mondiali nel settore delle stufe per sauna.
La linea Round Cube è ideale per chi cerca una sauna da esterno di design, efficiente, durevole e ad alta resa energetica, con un’estetica distintiva e un’esperienza wellness professionale direttamente a casa propria.
Round Cube SINGLE 200,240,260
Round Cube DOUBLE 240 e 260
| Componente | Specifiche Tecniche |
|---|---|
| Pareti | Legno ThermoWood® da 40 mm, resistente a umidità e sbalzi termici |
| Facciata anteriore | Vetrata temperata di sicurezza con design curvo iconico |
| Soffitto e tetto | ThermoWood® da 40 mm con copertura impermeabile ad alta resistenza |
| Porta | Vetro temperato con maniglia premium e cerniere nere |
| Panche e schienali | Sedute ergonomiche multilivello in legno naturale, con schienali anatomici |
| Archi strutturali | Archi curvi verniciati neri per stabilità e design |
| Ventilazione | 3–4 aperture di ventilazione strategiche per corretto ricircolo dell’aria |
| Illuminazione (optional) | Strisce LED integrate sotto panche e dietro schienali |
| RiscaldamentoS | Stufa sauna Tylo o Helo |
- Schienale interno in ginepro naturale, profumato e ricco di proprietà benefiche, lavorato artigianalmente per aumentare comfort ed esperienza sensoriale disponibile come opzione.
- Vetrate disponibili in diverse tonalità: trasparente, ambrata, nera o a specchio, per personalizzare privacy, luce e stile della sauna da esterno.
Round Cube Single – Sauna da esterno di design
Round Cube Single è la sauna da esterno ideale per giardini privati e contesti residenziali moderni.
Il volume interno è progettato per garantire una distribuzione uniforme del calore, una ventilazione naturale efficiente e una fruizione ergonomica delle sedute.
Il design curvo, la facciata vetrata e l’uso del ThermoWood® rendono questa sauna outdoor un vero elemento architettonico, oltre che una soluzione wellness completa.
| Caratteristica | Specifiche |
|---|---|
| Struttura | ThermoWood® per esterni |
| Tipologia | Sauna da esterno |
| Profondità disponibili | 200 cm / 240 cm / 260 cm |
| Vetrata frontale | Vetro temperato |
| Interni | Panche multilivello ergonomiche |
| Isolamento | Legno termotrattato ad alta densità |
| Ventilazione | Naturale integrata |
| Riscaldamento | Stufa Tylo o Helo |
| Utilizzo | Residenziale / hospitality / spa |
Varianti dimensionali disponibili
-
Single 200 → profondità 200 cm
-
Single 240 → profondità 240 cm
-
Single 260 → profondità 260 cm
Opzioni a scelta cliente – Single
-
Colore vetrata frontale (ambrata / fumè / specchiata)
-
Schienale in ginepro naturale profumato
-
Illuminazione LED integrata (panche e schienali)
- Impianto audio
Round Cube Double – Sauna da esterno con zona relax
Round Cube Double è una sauna da esterno con doppio ambiente: zona sauna + spazio frontale relax/spogliatoio.
Una soluzione ideale per spa private, strutture ricettive, resort e ville di prestigio.
Il progetto architettonico consente una separazione funzionale degli spazi, migliorando comfort, fruibilità e gestione termica.
Disponibile in due versioni di facciata vetrata per adattarsi a diverse esigenze estetiche e funzionali.
| Caratteristica | Specifiche |
|---|---|
| Struttura | ThermoWood® per esterni |
| Tipologia | Sauna da esterno con zona relax |
| Profondità | 240/260 cm |
| Vetrata | A scelta (totale o solo sauna) |
| Ambienti | 2 (sauna + spazio frontale) |
| Interni | Panche ergonomiche multilivello |
| Isolamento | Legno termotrattato |
| Ventilazione | Naturale integrata |
| Riscaldamento | Stufa Tylo o Helo |
| Utilizzo | Privato / spa / hotel / resort |
Varianti dimensionali disponibili
-
Double 240 → profondità 240 cm
-
Double 260 → profondità 260 cm
Versioni frontali disponibili
-
Versione A: frontale completamente vetrato
-
Versione B: frontale vetrato solo nella parte sauna
Opzioni a scelta cliente :
-
Colore vetrata (ambrata / nera / specchiata)
-
Schienale in ginepro naturale
-
Illuminazione LED integrata
- Impianto audio
Domande Frequenti FAQ
Caratteristiche e Design
Cosa distingue la sauna Round Cube dalle tradizionali saune a botte?
La Round Cube vanta un design brevettato a "cubo arrotondato", vincitore del premio Red Dot Design Award: Best of the Best. Questa forma unica offre uno spazio interno più ampio e confortevole rispetto alle classiche botti, combinando un'estetica moderna con la massima funzionalità ergonomica.
Quali materiali sono utilizzati per la struttura della sauna?
Le pareti esterne sono realizzate in pregiato Thermowood® (pino termotrattato) da 40 mm, un materiale eccezionalmente stabile e resistente all'umidità. Le panche interne sono in legno di pioppo tremulo (aspen) o ontano, scelti perché non si surriscaldano eccessivamente e non rilasciano resina.
La sauna da esterno Round Cube può essere usata anche in inverno?
Assolutamente sì. Grazie alle proprietà isolanti del legno termotrattato e alla qualità costruttiva, la Round Cube è progettata per resistere a climi rigidi ed essere utilizzata 365 giorni l'anno, sopportando neve e gelo.
Modelli Single e Double
Qual è la differenza tra il modello Single e il modello Double?
La Round Cube Single è costituita da un unico ambiente spazioso dedicato alla sauna. La Round Cube Double offre invece due stanze separate: una zona sauna (camera calda) e una comoda anti-camera frontale, ideale come spogliatoio o area relax per raffreddarsi.
Quante persone possono entrare nella Round Cube Single?
La capienza dipende dalla profondità scelta: il modello Single può ospitare comodamente da 6 fino a 8 persone nella versione più profonda (2.6m).
Quali sono le misure disponibili per la Round Cube Single?
Il modello Single è disponibile in tre profondità esterne: 200 cm, 240 cm e 260 cm. Larghezza (307 cm) e altezza (220 cm) restano invariate per mantenere il design iconico.
Quali dimensioni ha la Round Cube Double?
La Double è disponibile in due profondità esterne: 240 cm (per circa 5 persone) e 260 cm (per circa 6 persone), offrendo sempre la divisione in due ambienti.
Posso scegliere la configurazione della vetrata nel modello Double?
Sì, per il modello Double offriamo due opzioni estetiche: "Frontale completamente vetrato" per massima luce e continuità, oppure "Frontale vetrato solo parte sauna" per chi preferisce maggiore privacy nella zona spogliatoio.
Installazione e Tecnica
Che tipo di base serve per installare la sauna in giardino?
È fondamentale predisporre una superficie piana, livellata e stabile che non ceda nel tempo, come una gettata in cemento, una pavimentazione lastricata o plinti adeguati.
La sauna viene consegnata montata o in kit?
La modalità di consegna varia in base alle dimensioni. Solo i modelli con profondità 200 cm possono essere consegnati già montati (pronti all'uso, con scarico gru). Tutti gli altri modelli (profondità superiori a 200 cm) vengono forniti esclusivamente in kit di montaggio "fai-da-te".
Come funziona la ventilazione interna?
Per garantire una seduta sicura e salutare, la struttura include 3-4 aperture di ventilazione che assicurano un ricircolo d'aria naturale ottimale durante l'uso.
Optional e Personalizzazioni
Quali stufe sono incluse con la sauna?
Su Lifeclass.it proponiamo le saune Round Cube complete di stufe elettriche di alta gamma a marchio Tylo o Helo, dimensionate perfettamente per il volume della cabina scelta.
Cos'è l'opzione "Parete in Ginepro"?
È una finitura di pregio per la parete posteriore interna, realizzata con dischi di legno di ginepro lavorati a mano. Oltre all'estetica naturale, il ginepro emana un profumo aromatico rilassante con il calore.
Posso personalizzare l'illuminazione interna?
Sì, è disponibile un sistema di illuminazione a strisce LED dimmerabili, installabili sotto le panche e dietro gli schienali per creare un'atmosfera soffusa e suggestiva.
Quali colori sono disponibili per il vetro frontale?
Puoi scegliere la tonalità del vetro specchiato tra Bronze (più caldo) e Black Mirror (più scuro e moderno), in base ai tuoi gusti e allo stile del tuo esterno.
La sauna è coperta da garanzia?
Certamente. Le saune Round Cube sono prodotti premium "Designed for life", costruiti con materiali di alta qualità testati per durare nel tempo, e sono coperte da garanzia a norma di legge.
Richiedi catalogo e listino saune da esterno








